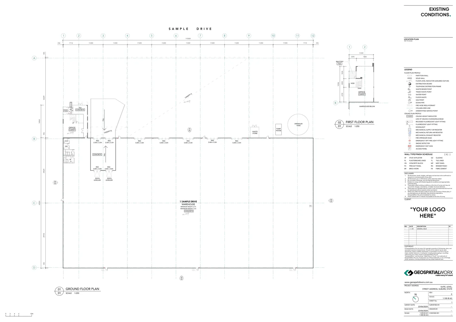
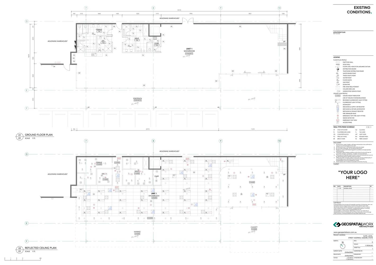
Our Existing Conditions Plans provide an accurate record of the built form in plan view — including detailed dimensions, wall types and services. The reliable base for any design & fitout work.

At GeospatialWorx, we produce Existing Conditions and As-Built Plans that accurately represent a building’s current form and layout.
Using 3D laser scanning and survey-grade instruments, we deliver precise documentation that forms the foundation for design, fitout, and renovation projects — helping you make informed decisions with verified data.
A measured 2D plan that documents the real-world layout of a building - not design intent. It shows:
1. Site Scanning
We use Leica 3D laser scanners and total stations to capture complete site geometry and existing conditions.
2. Data Registration
Collected scans and survey data is registered into a single, unified point cloud, ensuring spatial accuracy across all areas and levels.
3. Drafting
We produce the required 2D drawings from the point cloud using BricsCAD, tailored to your project’s required level of detail.
4. Quality Assurance
Each plan is reviewed for alignment, accuracy, and presentation quality before release.
5. Delivery
Final deliverables are supplied in PDF & DWG, ready for immediate integration into design and documentation workflows.
GeospatialWorx delivers as-built and existing conditions documentation with accuracy, consistency, and speed — ensuring your next design or fitout project starts with complete confidence in every m².
Yes—key heights and FFL/RL can be added where needed. We’ll scope exactly what you want shown.
Yes if required we can set all our levels to an Australian Height Datum. If not required they will be set to an arbrtriary datum.
By default we document base building and partitions. Furniture and racking can be added as an optional layer.
Yes, we routinely work in live environments and have developed efficient means of data capture next to no disruption.
Yes, when known we will document walls types and finishes. Concealed wall structures not possible with current technologies.
As a standard we have a robust and easy to understand layering system.
By default we document the following service points if available: Distribution boards, TDF, floor & trade waste points, fire hose reels & hydrants. For any services outside this list we can add them in as an optional layer.
