Conducted in line with the International Property Measurement Standards, our IPMS surveys provide consistent, transparent area data — helping you benchmark, lease or report space using a globally recognised system.

At GeospatialWorx, we provide IPMS (International Property Measurement Standards) surveys that deliver consistent and transparent area measurements across global property portfolios. By following the internationally recognised IPMS framework, we help clients, investors, and valuers compare properties anywhere in the world with confidence and accuracy.
An IPMS survey measures and documents floor areas according to the International Property Measurement Standards, a set of globally accepted guidelines designed to create uniformity in how property spaces are measured and reported.
Unlike regional frameworks such as the PCA Method of Measurement, IPMS ensures that the same property would produce the same area result — no matter who measures it or in which country it’s located.
1. Site Measurement
We capture detailed measurements using advanced 3D laser scanners and total stations, ensuring millimetre-level precision.
2. Plan Drafting & Area Calculation
Basic floor plan is drafted up allowing lettable areas to be calculated and categorised under the appropriate IPMS standard.
3. Verification & Compliance
Each survey is reviewed to confirm alignment with the IPMS standards and client-specific requirements.
4. Delivery
Final deliverables supplied in PDF including a basic floor plan, lease line nominateions and an area schedule withh a statement of compliance to the IPMS.
GeospatialWorx delivers IPMS surveys that make global portfolios comparable, auditable, and investor-ready — ensuring every m² is counted the same way everywhere.
Use IPMS when you need comparable, transparent area data that is recognised across all global markets.
IPMS - when you need cross-border comparability, global reporting, or investor-grade consistency.
PCA - when the deliverable must satisfy Australian leasing or valuation clauses tied to PCA.(We can produce both sets in one workflow if you need dual reporting.)
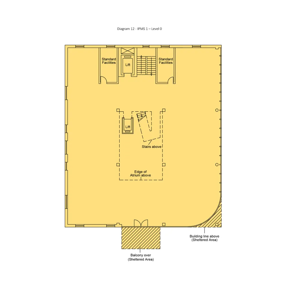
IPMS 1 – Whole building measured to the external face (incl. external/sheltered areas as defined).
IPMS 2 – Whole building measured to the internal extent of the Internal Dominant Face (IDF).
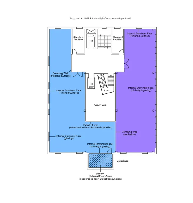
IPMS 3.1 / 3.2 – Exclusive occupation areas for a tenant/owner: 3.1 measured externally; 3.2 measured internally to the IDF.
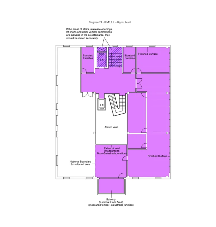
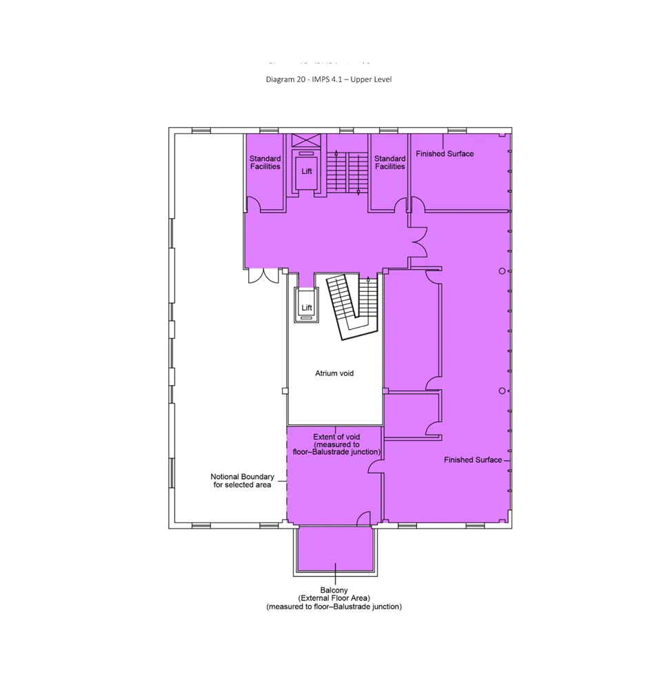
IPMS 4.1 / 4.2 – Selected parts of a building: 4.1 includes walls/columns; 4.2 excludes them.
Unlike the PCA where their are set classes for each property type the IPMS sets its classes around whole building, internal or external, exclusive and non-exclusive calculations. From our experience the type of IPMS class used is usually defined by the lease/heads of agreement.
Toilets, plant rooms, risers, stairs and similar “base-building” amenities do count in the whole-building figures (IPMS 1 & 2) but do not count in a tenant’s exclusive lettable area (IPMS 3.2), unless it’s a tenant-specific fit-out space—then it’s included and, if constrained, flagged as Limited-Use
In many markets (e.g., Australia’s PCA, North America’s BOMA) local standards are still the day-to-day default for leasing and compliance. As a result, dual reporting (IPMS + local standard) is common on institutional assets, cross-border portfolios, and transactions involving international investors or lenders.
IPMS has been around since 2013, when the International Property Measurement Standards Coalition was formed (World Bank meeting, 30 May 2013). The first standard (IPMS: Office Buildings) arrived in 2014, followed by Residential (2016), Industrial (2018) and Retail (2019). These were consolidated into IPMS: All Buildings published/effective January 2023, which now replaces the earlier asset-by-asset standards.
