Styled plans that communicate layout and flow. Designed to look great in brochures, IMs, listings and stake holder packs. Suitable for all property types.

To help you choose the right product for your project, here is a breakdown of why specific technical features are included or excluded based on your goals:
Our Campaign Plans transform technical survey data into a high-impact visual sales tool. Engineered specifically for web listings, Information Memorandums (IMs), and social media, this series strips away technical clutter to prioritize buyer engagement and rapid information delivery.
Best for: Real estate agents, asset managers, and landlords looking to drive higher click-through rates and faster inquiries.
Our Standard Floor Plans provide a clear, detailed, and accurate representation of your property for general reference and internal reporting. They serve as the foundational document for property managers and owners who need a reliable "source of truth" for their assets.
Best for: Property managers, owners, and facilities teams requiring a clean, professional record of their building's layout.
When it comes to lease contracts and asset reporting, precision is a legal requirement. Our PCA Surveys are prepared in strict accordance with the PCA Method of Measurement (2008), ensuring complete transparency and compliance for all stakeholders.
Best for: Landlords, leasing agents, and asset managers who need certified accuracy for commercial, industrial, or retail lease agreements.
The Existing Conditions series is our most technically robust product, designed to eliminate the "site measure" time for architects and engineers. By leveraging high-precision 3D laser scanning, we provide a digital twin of your building's current state.
Best for: Architects, interior designers, engineers, and fitout contractors who need exact "as-built" data before starting a project.
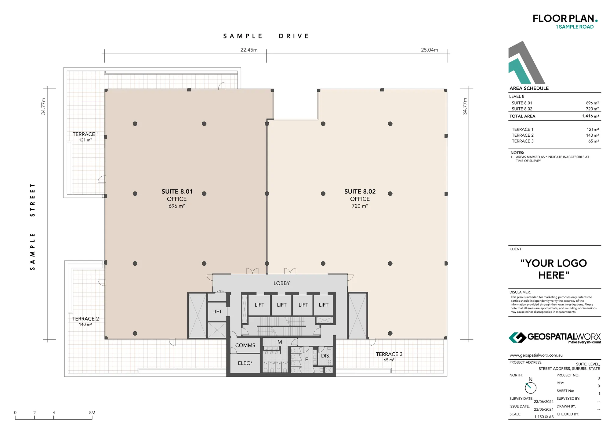
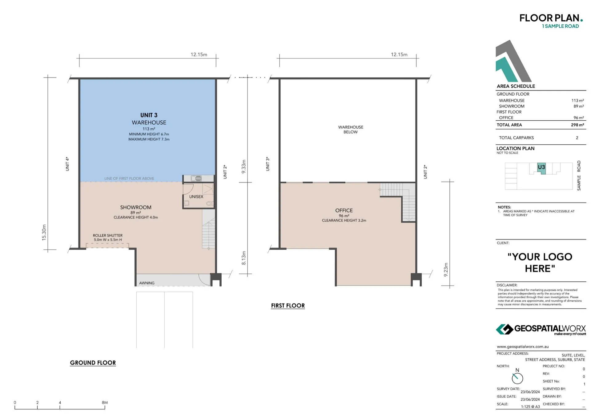
Yes a schedule of areas will accompany any floor and site plans. Building areas are typically broken down dependent on use of space; rehouse, office, retail, amenities, service areas, etc.
A scaled plan showing the base building (external walls, columns, structural cores), interior layout (partitions, rooms, amenities), access & circulation (entries, doors, windows, stairs/lifts), and labels/dimensions for key spaces. Industrial plans also note clearances, roller shutters, dock levellers, awnings/canopies. Each sheet includes north point, scale bar, title block, and an area schedule.
Our Floor Plans for marketing are styled for clarity and presentation. Items such as lease line nominations and symbols typically found on a PCA Survey are not required on a floor plan and often clutter and distract upon the visual appeal of a Floor Plan prepared for marketing.
Single sites/tenancies: 4-5 business days. Multi-level or large sites: 7-10 business days. Express options available.
Yes, edits within scope are included free of charge.
Yes, office workstations and warehouse racking can be added in as additional scope items.
Yes—our Desktop Floor Plans service restyles and standardises your existing drawings for presentation. Accuracy mirrors your source; we would suggest a measured survey if you need verification.
