Detailed architectural floor plans, reflected ceiling plans and elevations & cross sections for design, documentation and fitout teams.


At GeospatialWorx, our Existing Conditions Surveys capture the true, as-built state of a building or site — providing architects, designers, and construction professionals with the accurate information they need to design, plan, and build with confidence. Each survey is measured with millimetre precision using 3D laser scanning and total station technology, ensuring every m² is documented accurately.
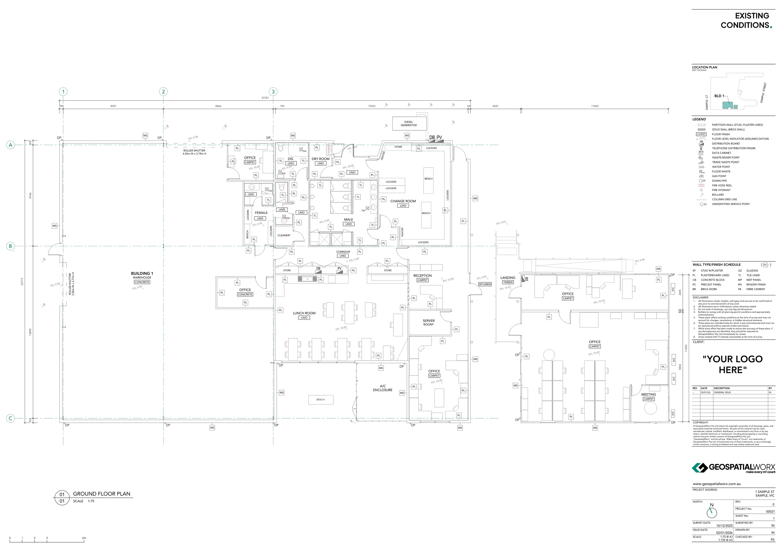
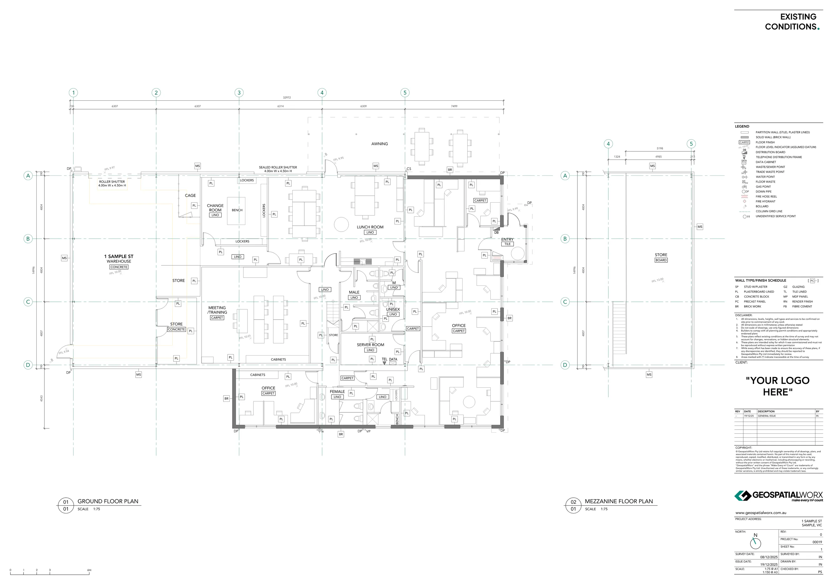
An Existing Conditions Survey (also known as an As-Built Survey) is a detailed measurement and documentation of a building’s current state — including detailed floor plans, reflected ceiling plans, external elevatons, cross sections, and site features.
These surveys are essential for projects involving renovations, refurbishments, or fitouts where accurate baseline data is critical. Our deliverables can include 2D plans, elevations, sections, or complete 3D Revit models depending on project requirements.
1. Site Scanning
We use Leica 3D laser scanners and total stations to capture complete site geometry and existing conditions.
2. Data Registration
Collected scans are registered into a single, unified point cloud, ensuring spatial accuracy across all levels.
3. Drafting
We produce the required 2D drawings from the point cloud using BricsCAD tailored to your project’s required level of detail.
4. Quality Assurance
Each plan is reviewed for alignment, accuracy, and presentation quality before release.
5. Delivery
Final deliverables are supplied in PDF & DWG, ready for immediate integration into design and documentation workflows.
GeospatialWorx delivers precise, audit-ready documentation of existing buildings — giving you the confidence to design, plan, and build with measurable accuracy in every m².
Detailed floor plans, site plans, reflected ceiling plans, elevations and cross sections, 3D scan point cloud data, photo libraries-depending on your requirements.
Clean, coordinated outputs in PDF and CAD dwg. We can also supply Revit models and pointcloud files (E57/RCP)
Millimetre-level capture - we use advanced laser scanning and total stations for high accuracy. All plans are quality checked before delivery.
Yes we can, refer to our Revit Model services page for more informtion.
Yes. We routinely work in live environments and have developed efficient means of data capture next to no disruption.
No problems - can can custom tailor a existing conditions package to meet your needs.
Visible fixtures are included by default. Above-ceiling/M&E as-builts can be added as an option and priced by area/complexity/means of suitable access & clearances.
No, we can refer you to a company and can work with them to tie their findings into our work if required.
