Lease-grade area documentation measured to the Property Council of Australia's (PCA) Method of Measurement 2008 - clear, defensible areas for fast, low-friction leasing.





At GeospatialWorx, our PCA Surveys are carried out in strict accordance with the Property Council of Australia’s (PCA) Method of Measurement — the national standard for defining and reporting lettable areas. Designed for leasing, asset management, and property valuation, these surveys provide landlords, tenants, and property managers with accurate, audit-ready documentation that makes every m² count.
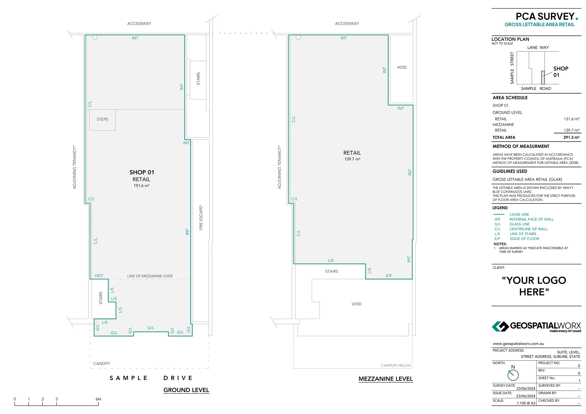
A PCA Survey measures and documents the lettable areas of commercial, industrial, retail or residential properties in line with the Property Council of Australia’s guidelines. This ensures all parties involved in a lease agreement — landlords, tenants, agents, and valuers — are working from the same verified, compliant data.
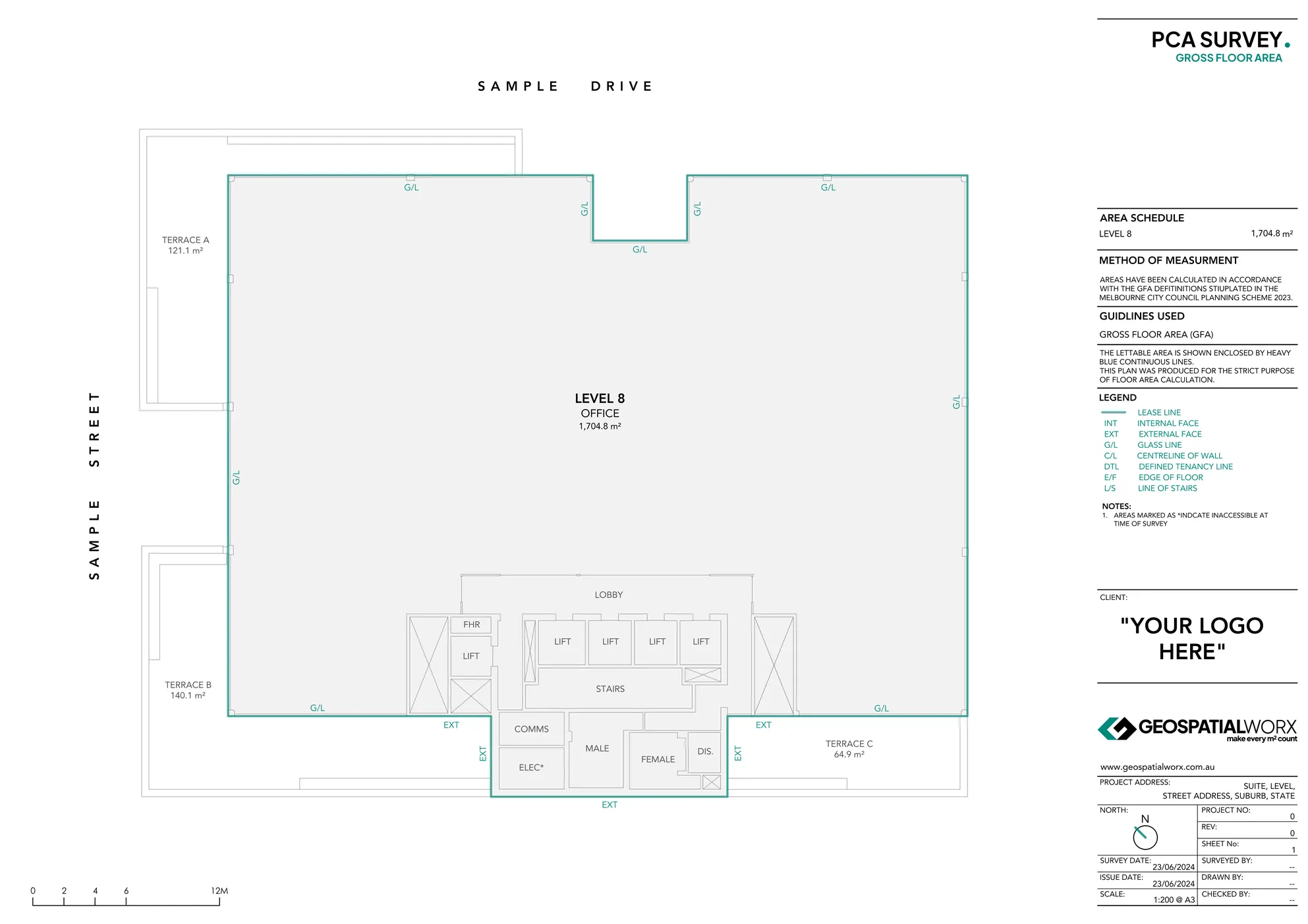
Our team delivers high-precision PCA Surveys that identify and calculate areas such as Net Lettable Area (NLA), Gross Lettable Area (GLA), Gross Lettable Area Retail (GLAR) and Gross Floor Area (GFA) with complete accuracy and consistency.
1. Site Measurement
We capture building data using advanced 3D laser scanners or total stations to ensure millimetre precision.
2. Plan Drafting & Area Calculation
Basic floor plan is then drafted up allowing lettable areas to be calculated and categorised under PCA definitions such as NLA, GLA, GLAR, or GFA.
3. Verification & Compliance
Each survey is reviewed to confirm alignment with PCA standards and client-specific requirements.
4. Delivery
Final deliverables are supplied in PDF including a basic floor plan, lease line nominations and an area schedule with a statement of compliance to the PCA.
Every GeospatialWorx PCA survey includes more than just a number — we deliver clear, styled plans with transparent lease boundaries and all relevant area data
Typical triggers can include new leases, lease renewals, rent reviews, make-good assessments, valuations, du-diligence, re-planning and when fitouts or base-building works may have changed an area.
You will receive PCA compliant PDF report in A3 format. The report itself will contain a basic base building floor plan identifying all area types. Lease lines and their subsequent nominations are shown along with an area schedule and a statement of compliance to the PCA.
Site measurements are taken to high precision; reported areas follow PCA rounding conventions tot he first decimal place. Any constraints or asumptions are documented in the report.
Access into all internal areas is generally required. Field-work is non-intrusive. 3D Scanners and total stations are tripod mounted, and typical tenancy captures are completed quickly to next to no impact on staff or customers.
Any change that alters the shape/configuration of an internal space can affect lettable area. We can resurvey the affected zones and issue an update PCA Survey.
IPMS (International Property Measurement Standards) is a global framework designed to make property measurements comparable across countries. For offices, for example, you’ll see IPMS 1, IPMS 2, IPMS 3 (capturing different levels of detail from whole-building to occupant areas). IPMS also exists for industrial, residential, and retail.
- Where it differs: PCA is Australia-specific and optimized for local leasing and valuation (NLA/GLA/GLAR and PCA inclusion/exclusion rules). IPMS uses its own definitions and calculation tiers, so IPMS results will often differ from PCA for the same space.
- When to use: Choose IPMS for cross-border reporting or global portfolio consistency; choose PCA for Australian leasing, valuation, and compliance. We can deliver both sets of figures from a single survey if required.
BOMA (Building Owners & Managers Association) standards are commonly used in North America. They define areas such as Rentable Area and Usable Area and set rules for how shared spaces (e.g., corridors, lobbies) are apportioned to tenancies.
- Where it differs: PCA (Property Council of Australia) sets NLA/GLA/GLAR rules for Australian leases and valuations. BOMA uses different terminology and boundary rules (e.g., how to treat common areas, wall thickness, and projections), so figures from BOMA and PCA are not interchangeable.
- When to use: If your portfolio or lease documents are aligned to Australian practice, use PCA. If you’re reporting to North American stakeholders or BOMA-based leases, request BOMA. We can produce either—and map one to the other when needed.
Yes. Australia used a BOMA (Australia) Method of Measurement before the PCA standard. The Property Council of Australia (PCA) introduced its own Method of Measurement for Lettable Area in the late 1990s (commonly cited as 1997), which superseded the earlier BOMA (Australia) guidance. Many legacy leases still reference “BOMA,” so it’s not unsual to see either terms in older documents.
