Visually striking floor plans with high-impact icons and direct URLs, engineered to maximize interest & buyer engagement.

At GeospatialWorx, our Campaign Plans dont just communicate layout, flow, and spatial value — our plans help you present the asset at its best to make every m² count.
Campaign Plans are visually striking 2D drawings that translate complex survey data into a clear, market-ready sales tool. By stripping away technical clutter and adding high-impact iconography and embedded web URLs, we create a refined floor plan designed specifically for high-performance listings and Information Memorandums (IMs).
1. Site Capture
We measure on site using total stations or 3D laser scanning, establishing reiable control and reference data.
2. Drafting
Utilising the survey data plans are drafted in CAD to our standards - clear linework, stylized block work, modern hatching and tidy sheet layouts.
3. Quality Assurance
Each plan is reviewed for alignment, accuracy, and presentation quality before release.
4. Delivery
Final deliverables are provided in PDF, DWG, or image formats, ready for marketing, documentation, or project coordination.
5. Revisions
Minor edits included free of charge
GeospatialWorx delivers Campaign Plans that that bridge the gap between technical data and visual impact—empowering our clients to market with confidence in every m².
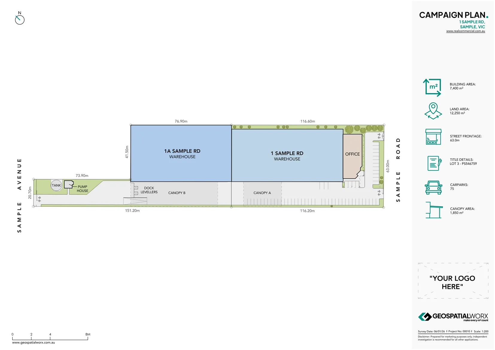
Yes a schedule of areas will accompany any floor and site plans. Building areas are typically broken down dependent on use of space; rehouse, office, retail, amenities, service areas, etc.
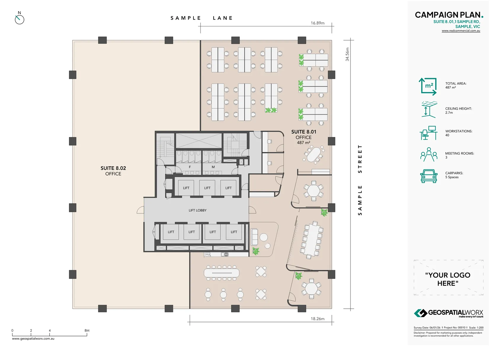
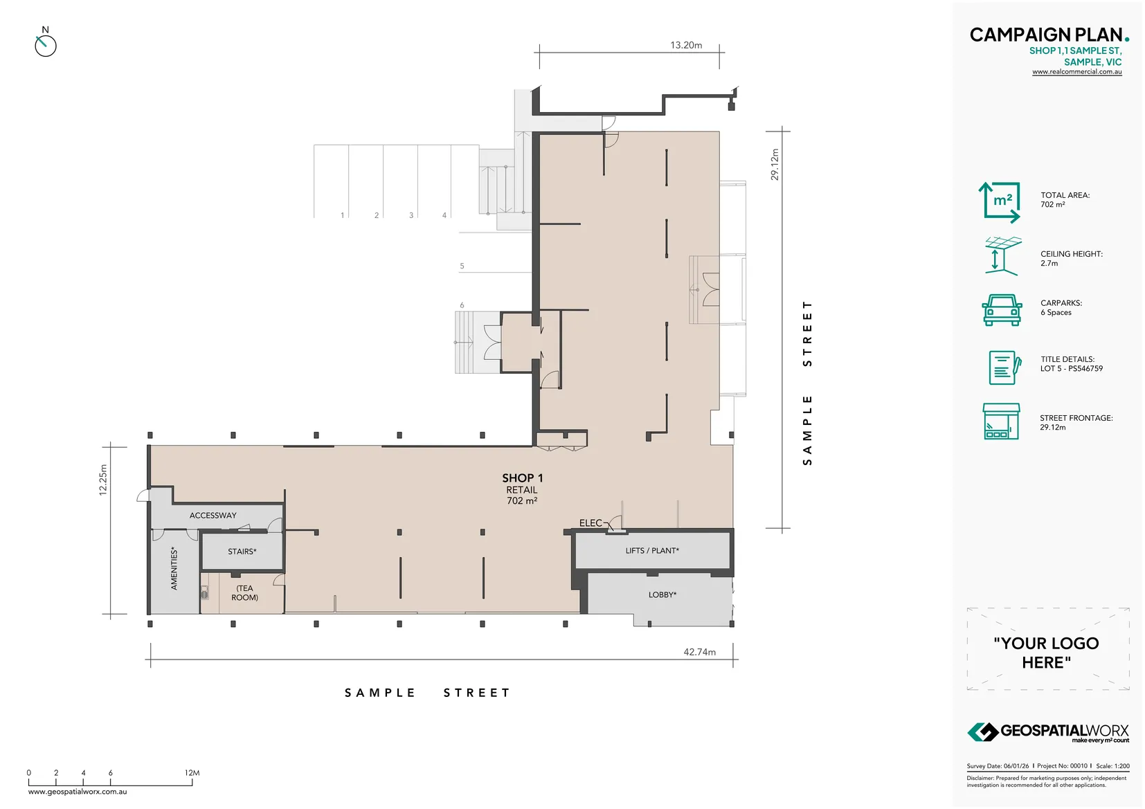
A scaled plan showing the base building (external walls, columns, structural cores), interior layout (partitions, rooms, amenities), access & circulation (entries, doors, windows, stairs/lifts), and labels/dimensions for key spaces. Industrial plans also note clearances, roller shutters, dock levellers, awnings/canopies. Each sheet includes north point, scale bar, title block, and an area schedule.
Our Floor Plans for marketing are styled for clarity and presentation. Items such as lease line nominations and symbols typically found on a PCA Survey are not required on a floor plan and often clutter and distract upon the visual appeal of a Floor Plan prepared for marketing.
Single sites/tenancies: 4-5 business days. Multi-level or large sites: 7-10 business days. Express options available.
Yes, edits within scope are included free of charge.
Yes, office workstations and warehouse racking can be added in as additional scope items.
Yes—our Desktop Floor Plans service restyles and standardises your existing drawings for presentation. Accuracy mirrors your source; we would suggest a measured survey if you need verification.
